DHH in Erding: Wohnen auf höchstem Niveau - Familienidyll mit Sauna, Studio und Einliegerwohnung
Objektart
Adresse
Objektdaten
Informationen
Ausstattung
Details
Diese hochwertige Doppelhaushälfte aus dem Baujahr 2015 bietet Familien ein außergewöhnlich großzügiges, modernes und wohngesundes Zuhause in ruhiger Lage. Verteilt auf drei Etagen plus Untergeschoss überzeugt das Haus durch eine durchdachte Raumaufteilung, viel Tageslicht und zahlreiche Rückzugs- sowie Gemeinschaftsbereiche - ideal für das Familienleben heute und morgen.
Herzstück der Hauptwohnung ist der über 50 m² große, offen gestaltete Wohn-/Ess-/Küchenbereich. Hier trifft modernes Design auf Alltagstauglichkeit: Die hochwertige offene Küche mit Granitarbeitsplatte ist optisch integriert, während der angrenzende Hauswirtschafts- und Speisekammerbereich geschickt verborgen und sowohl über den Flur als auch direkt aus der Küche zugänglich ist. Eine bodentiefe, ca. 4 m breite Hebe-Schiebetür verbindet den Wohnbereich ebenerdig mit der sonnigen Südterrasse. Diese ist ca. 30 m² groß, teilweise überdacht und durch Sichtschutzwände angenehm privat - perfekt für spielende Kinder, Familienessen im Freien oder entspannte Nachmittage.
Im Erdgeschoss befindet sich zudem ein Gäste-WC mit zusätzlicher bodengleicher Dusche - praktisch für Besuch oder den turbulenten Familienalltag.
Die zweite Etage bietet drei großzügige, helle Zimmer, ein separates Ankleidezimmer sowie ein modernes Familienbad mit großer Walk-In-Dusche. Hier finden Kinder ebenso wie Eltern ihren eigenen Rückzugsort.
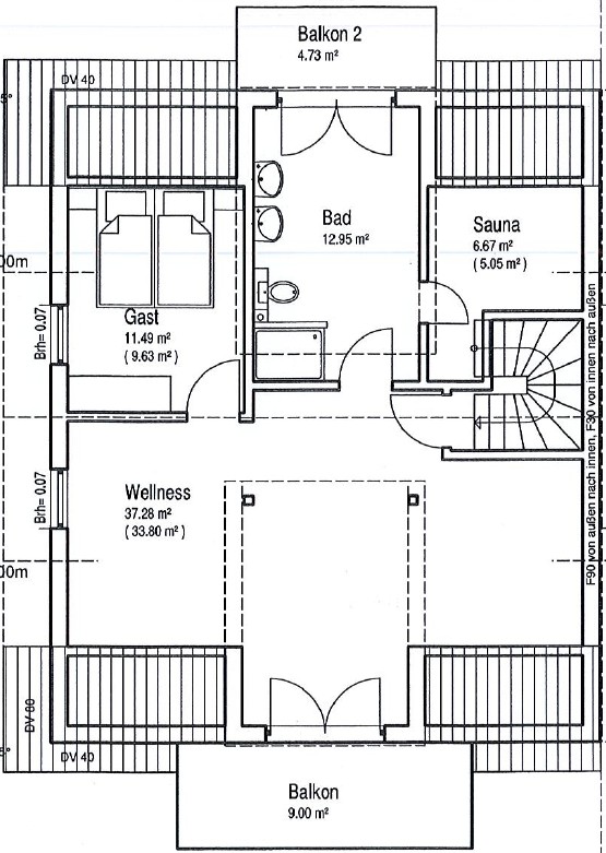
Ein besonderes Highlight ist die komplett abgetrennte dritte Etage: Neben einem weiteren Zimmer und einem ca. 34 m² großen Studio - ideal als Jugendbereich, Homeoffice oder Hobbyraum - erwartet Sie hier ein großzügiges Bad mit bodengleicher Dusche sowie eine helle Sauna mit Glasfront. Zwei Balkone im Dachgeschoss ermöglichen einen schönen Rundumblick ins Grüne und schaffen zusätzliche Freiflächen.
Das Haus erfüllt hohe ökologische und energetische Standards. Diffusionsoffene, "atmungsaktive" Außenwände, dreifach verglaste Fenster, eine moderne Lüftungsanlage mit Wärmerückgewinnung sowie elektrische Rollläden sorgen für ein angenehmes Raumklima und niedrige Betriebskosten. Echtholz-Eiche-Landhausdielen, hochwertige Innentüren, LED-Beleuchtung und eine elegante Treppe mit Massivholzstufen unterstreichen den hochwertigen Charakter des Hauses.
Im Untergeschoss befindet sich eine ca. 58 m² große, separat zugängliche Einliegerwohnung mit eigener Zähleinrichtung. Sie ist aktuell vermietet und bietet Familien attraktive Zusatz einnahmen oder langfristige Nutzungsmöglichkeiten, z. B. für Großeltern oder erwachsene Kinder. Zusätzlich stehen ein weiterer Lagerraum sowie mehrere Waschmaschinenanschlüsse zur Verfügung.
Vier Carportstellplätze und ein zusätzlicher Abstell- bzw. Fahrradraum bieten ausreichend Platz für den Fuhrpark und alles, was eine Familie benötigt.
Ein Zuhause, das Raum zum Wachsen, Leben und Wohlfühlen bietet - ideal für Familien mit Anspruch an Qualität, Komfort und Zukunftssicherheit.
Hauptwohnung - hochwertig, modern, durchdacht
- Baujahr 2015, energieeffiziente und ökologische Bauweise
- Diffusionsoffene Außenwände für ein wohngesundes Raumklima
- 3-fach verglaste, bodentiefe Fenster mit Glasbrüstungen
- Kontrollierte Wohnraumlüftung mit Wärmerückgewinnung
- Elektrische Rollläden bzw. Jalousien an allen Fenstern
- Großzügiger Wohn-/Ess-/Küchenbereich mit hochwertiger Einbauküche und Granitarbeitsplatte
- Praktischer Hauswirtschaftsraum mit direktem Zugang aus der Küche
- Echtholz-Eiche-Landhausdielen und elegante Treppe mit Massivholzstufen
- Drei moderne Bäder mit bodengleichen Duschen und stilvollen Sanitärobjekten
- Wellnessbereich im Dachgeschoss mit Sauna und Glasfront
- Südterrasse ca. 30 m², teilweise überdacht, mit Sichtschutz
- Drei Balkone mit Edelstahl-/Glasgeländern (gesamt ca. 23 m²)
- Netzwerk-, SAT- und Telefonanschlüsse in zentralen Wohnräumen
- LED-Einbauspots und hochwertige Innentüren
Einliegerwohnung (ca. 58 m²):
- Separater Zugang und eigene Zähler
- Hochwertiger Parkettboden, Fußbodenheizung
- Tageslicht in Wohn-, Schlaf- und Badbereich
- Lüftungsanlage mit Wärmerückgewinnung
- Aktuell vermietet (Kaltmiete 970 EUR zzgl. Nebenkosten)
Außenbereich:
- Vier Carportstellplätze
- Zusätzlicher Abstell-/Fahrradraum
Der Eiche Parkettboden im EG wurde nach dem letzten Mietwechsel Mitte 2025 komplett erneuert. Im 1.OG und 2.OG wurde der Eiche Parkettboden abgeschliffen und frisch versiegelt. In diesem Zuge wurde die Wohnung komplett frisch gestrichen, ebenso wurde das Haus außen frisch gestrichen und das Müllhäuschen erneuert.
Diese Immobilie befindet sich in einer der besonders geschätzten Wohnlagen der Großen Kreisstadt Erding. Das ruhige, gewachsene Wohnumfeld ist geprägt von Ein- und Zweifamilienhäusern, wenig Verkehr und viel Grün - ein ideales Umfeld für anspruchsvolle Familien, die Wert auf Sicherheit, Privatsphäre und eine hohe Wohnqualität legen.
Erding zählt seit Jahren zu den gefragtesten Wohnorten im Münchner Umland. Die Stadt verbindet charmantes, historisches Flair mit einer hervorragend ausgebauten Infrastruktur. Kindergärten, Schulen aller Bildungsstufen sowie zahlreiche Freizeit- und Sportangebote sind bequem erreichbar und unterstreichen den familienfreundlichen Charakter dieser Lage.
Für den täglichen Bedarf stehen vielfältige Einkaufsmöglichkeiten, Bäckereien, Apotheken und Ärzte in kurzer Distanz zur Verfügung. Die lebendige Innenstadt mit ihrem attraktiven Marktplatz, gehobener Gastronomie, Cafés und kleinen Fachgeschäften lädt zum entspannten Bummeln und Genießen ein.
Pendler schätzen die ausgezeichnete Anbindung an den öffentlichen Nahverkehr sowie die schnelle Erreichbarkeit der Münchner Innenstadt und des Flughafens München. Gleichzeitig bietet das Umfeld zahlreiche Grünflächen, Spazier- und Radwege, die zu Erholung und aktiver Freizeitgestaltung einladen.
Ein besonderes Highlight ist das außergewöhnlich vielseitige Freizeitangebot der Region: Ob Wellness, Sport, Natur oder Kultur - hier finden Familien und Paare gleichermaßen ideale Voraussetzungen für eine ausgewogene Work-Life-Balance.
Diese Lage vereint Ruhe, Wertbeständigkeit und urbane Nähe - ein Zuhause für Menschen, die langfristig denken und höchste Ansprüche an ihr Wohnumfeld stellen.
WIDERRUFSRECHT BEI MAKLERVERTRÄGEN
Sie haben das Recht, binnen 14 Tagen ohne Angabe von Gründen diesen Maklervertrag zu widerrufen. Die Widerrufsfrist beträgt vierzehn Tage ab dem Tag dieses Vertragsschlusses. Um Ihr Widerrufsrecht auszuüben, müssen Sie der Fa. UM Immobilien, (Zellnerstr. 4, 84559 Kraiburg) mittels einer eindeutigen Erklärung (z.B. ein Brief, Telefax oder E-Mail) über Ihren Entschluss, diesen Vertrag zu widerrufen, informieren. Sie können dafür ein einfaches Schreiben verwenden, in dem Sie erklären, dass Sie den abgeschlossenen Vertrag widerrufen. Zur Wahrung der Widerrufsfrist reicht es aus, dass Sie die Mitteilung über die Ausübung des Widerrufsrechts vor Ablauf der Widerrufsfrist absenden.
FOLGEN DES WIDERRUFS
Wenn Sie diesen Vertrag widerrufen, haben wir Ihnen alle Zahlungen, die wir von Ihnen erhalten haben, unverzüglich und spätestens binnen vierzehn Tagen ab dem Tag zurück zu zahlen, an dem die Mitteilung über Ihren Widerruf dieses Vertrags bei uns eingegangen ist. Für diese Rückzahlung verwenden wir das selbe Zahlungsmittel, das Sie bei der ursprünglichen Transaktion eingesetzt haben, es sei denn, mit Ihnen wurde ausdrücklich etwas anderes vereinbart; in keinem Fall werden Ihnen wegen dieser Rückzahlung Entgelte berechnet.
KOSTENERSTATTUNG
Haben Sie verlangt, dass die Dienstleistungen der Fa. UM Immobilien während der Widerrufsfrist beginnen soll (z.B. weil wir ein Expose übermitteln oder eine Wohnungsbesichtigung durchführen), so haben Sie uns einen angemessenen Betrag zu zahlen, der dem Anteil der bis zu dem Zeitpunkt, zu dem Sie uns von der Ausübung des Widerrufsrechts hinsichtlich dieses Vertrags unterrichten, bereits erbrachten Dienstleistungen im Vergleich zum Gesamtumfang der im Vertrag vorgesehenen Dienstleistungen entspricht. Sofern wir unsere Dienstleistung als Immobilienmakler zu diesem Zeitpunkt bereits vollständig erbracht haben, entspricht diese Kostenerstattung der Höhe nach der vollen vereinbarten Provision.
Energieausweis (Bedarfsausweis)
47,60 kWh / (m²*a) Endenergiebedarf
47,60 kWh / (m²*a) Endenergiebedarf
47,60 kWh / (m²*a) Endenergiebedarf
Weitere Informationen
| Wesentlicher Energieträger | Fernwärme |
| Energieausweis Ausstelldatum | 2026-02-16 |
| Energieausweis gültig bis | 16.02.2036 |
| Energieausweis Jahrgang | ab dem 1.5.2014 |
| Energieausweis Werteklasse | A |
| Energieausweis Baujahr | 2015 |
| Energieausweis Gebäudeart | Wohngebäude |
| Heizung | Fernheizung |
| Befeuerung | Fernwärme |
